Zurück
Suchen
Suche
Gäste 2 Gäste

Grimm, Rita und Rainer: App.

Max.  4   Gäste
49m²  Wohnfläche
1 Schlafmöglichkeit
1  Badezimmer
Max. 4  Gäste
49m²
1 Schlafmöglichkeit
Teilen
DTV-Klassifizierung Diese Unterkunft ist nach den Sternekriterien des Deutschen Tourismusverbandes geprüft und bewertet. Je nach Ausstattung und Service wird die Unterkunft mit ein bis fünf Sternen ausgezeichnet.

Tolle Lage

Blitzsaubere Unterkunft

100% Weiterempfehlung

Seit über 4 Jahren online



DTV-Klassifizierung Diese Unterkunft ist nach den Sternekriterien des Deutschen Tourismusverbandes geprüft und bewertet. Je nach Ausstattung und Service wird die Unterkunft mit ein bis fünf Sternen ausgezeichnet.
Bitte geben Sie Ihre Reisedaten ein für genaue Preise
2 Gäste

DFV logo
Geprüft und zertifiziert vom Deutschen Ferienhausverband e.V.
Über 1.000 verifizierte Bewertungen auf Trustpilot
Best Price
Buchen ohne Gebühren
und Provisionen

DTV-Klassifizierung Diese Unterkunft ist nach den Sternekriterien des Deutschen Tourismusverbandes geprüft und bewertet. Je nach Ausstattung und Service wird die Unterkunft mit ein bis fünf Sternen ausgezeichnet.

Tolle Lage

Blitzsaubere Unterkunft

100% Weiterempfehlung

Seit über 4 Jahren online



Beschreibung

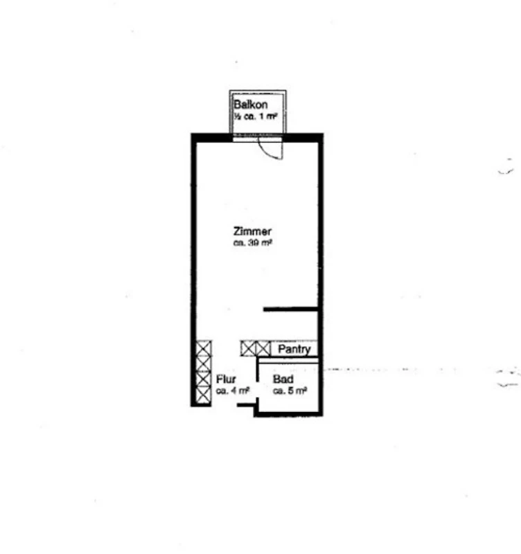
Das Appartement hat eine Grösse von 47 qm und bietet bis zu 4 Personen Platz. Der kombinierte Schlaf- und Wohnbereich ist hell und modern eingerichtet und gerade renoviert. Die separate Küchenzeile ist mit Mikrowelle, Wasserkocher und Kaffeemaschine gut eingerichtet. Das moderne Badezimmer bietet neben Toilette und grossem Waschbecken, eine Badewanne mit Duschmöglichkeit, viel Ablagefläche, sowie Fön und Kosmetikspiegel.

Vom Balkon des Appartements "Fördeblick" geniessen Sie den ganzen Tag den Blick auf den Strand und die schöne Kieler Förde.

Es steht Ihnen alles für einen angenehmen Aufenthalt zur Verfügung. Die Sauna und befindet sich im Haus und auch Ihr Auto kann in der Tiefgarage frei geparkt werden.

Der lange Sandstrand mit Promenade beginnt direkt (40m) vor der Haustür. Kilometerlange Wander- und Radwege laden zu ausgiebigen Touren ein.

Der schöne Ferienort Laboe mit guten Einkaufsmöglichkeiten ist nur 4 km entfernt. Die Landeshauptstadt Kiel erreichen Sie in ca. 30 Minuten. Dort finden Sie alle Möglichkeiten der Freizeitgestaltung, Shopping und kulturelle Einrichtungen.

Die Vorteile der Appartements auf einen Blick:

• Grosszügige Räumlichkeiten mit Balkon
• W-Lan kostenlos
• Keine Kurtaxe
• Nichtraucherappartement
• Sauna gegen Gebühr
• Kostenfreier Tiefgaragenstellplatz
• Waschen und Trockner gegen Gebühr

Bitte beachten Sie, dass die Gemeinde Stein zum 1. Januar 2020 eine Übernachtungsabgabe in Höhe von 4 % eingeführt hat. Die Steuer ist bei Zahlung des Mietpreises fällig.

Wir möchten Sie ausserdem darauf hinweisen, dass die Schlüsselübergabe am Schönberger Strand stattfindet.

Wir würden uns freuen, Sie bei uns begrüssen zu dürfen./b>

Schlafmöglichkeit

Wohnzimmer
Doppelbett (151x180 cm)
Schlafsofa

Zimmer und Ausstattung

Haustiere nicht erlaubt Haustiere nicht erlaubt
Nichtraucher Nichtraucher
WLAN WLAN
Garten Garten
Fernseher Fernseher
Waschmaschine Waschmaschine
Sauna Sauna
Balkon Balkon
Kinder willkommen Kinder willkommen
Gesamte Ausstattung anzeigen

Anreise/Lage

Landkarte anzeigen

Anreise und Entfernungen

Bahnhof 22 Kilometer Kiel

22 Kilometer


Freizeitmöglichkeiten


Richtlinien


Hinweise des Vermieters

Zusätzliche Informationen zum Mietpreis:

In den genannten Preisen sind die Nebenkosten (Strom, Wasser, Heizung) inbegriffen.

Bettwäsche und Handtücher bringen Sie bitte selbst mit. Sauna gegen Gebühr. Waschmaschine und Wäschetrockner sind Münzgeräte.

Stornierungsbedingungen:


•bis zum 49. Tag vor Anreise 20%
•bis zum 22. Tag vor Anreise 50%
•bis zum 8. Tag vor Anreise 70%
•Danach gilt der allgemeine Grundsatz von 1%.


Verfügbarkeit

Bitte nutzen Sie den Preisrechner, um die Verfügbarkeit und den Preis zu ermitteln.


1 Bewertung

Gesamtbewertung

4,0 von 5
4.0 Ausstattung
4.0 Preis/Leistung
2.0 Service
5.0 Lage
5.0 Sauberkeit
Die Bewertungen werden auf ihre Echtheit überprüft. Mehr dazu in unseren Bewertungsrichtlinien.
Die Bewertungen werden auf ihre Echtheit überprüft. Mehr dazu in unseren Bewertungsrichtlinien.

4,0
4 4 2 5 5

Die Schlüsselabholung und Abgabe ist für uns, ohne eigenen PKW eine Zumutung! Bitte machen Sie sich Gedanken über eine Schlüsselbox direkt am Objekt.


Kontakt

Firma SECRA Bookings GmbH


Weitere Unterkünfte von SECRA Bookings GmbH

Alle Unterkünfte anzeigen von SECRA Bookings GmbH

Weitere Unterkünfte, die Ihnen auch gefallen könnten


Weitere Informationen

Urlaubsideen:

Familienurlaub

Objektnummer: 355079

Zuletzt aktualisiert: 23.12.2025

Inserat online seit: 4 Jahren, 5 Monaten

URL: https://www.ferienhausmiete.de/355079.htm


«Grimm, Rita und Rainer: App.» erreicht eine Urlauberbewertung von 4 (Bewertungsskala: 1 bis 5) bei 1 abgegebenen Bewertung.

Entfernen
Zu den Favoriten
Bitte geben Sie Ihre Reisedaten ein für genaue Preise
2 Gäste

DFV logo
Geprüft und zertifiziert vom Deutschen Ferienhausverband e.V.
Über 1.000 verifizierte Bewertungen auf Trustpilot
Best Price
Buchen ohne Gebühren
und Provisionen

Beliebte Unterkunft!

Sichern Sie sich jetzt Ihren Wunschtermin.

Kontaktdaten des Gastgebers anzeigen
Haben Sie Fragen zu dieser Unterkunft?
Nachricht senden
Chat
Gespeichert auf
Entfernt von