Zurück
Suchen

1-malig

Max.  3  Gäste
15m²
1 Schlafzimmer
Teilen
Bitte geben Sie Ihre Reisedaten ein für genaue Preise
2 Gäste




Beschreibung

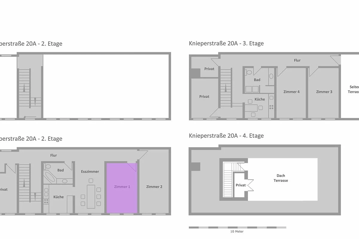
Betrachten Sie die Dachlandschaft unserer Vergangenheit aus der Vogelperspektive. Das Altstadt-Kreativquartier hat eine Dachterrasse und vier separate Doppelzimmer auf zwei Etagen, die sich zwei Küchen und Bäder teilen. Sie können Ihre Mahlzeiten selbst zubereiten und sich von Ihren Mitreisenden inspirieren lassen. Grossformatige Bilder schmücken die Wände und regen zum Malen an. Bei Bedarf kann ein Kinderbett (bis 3 Jahren) gestellt werden. Auch Waschmaschine und Trockner sind vorhanden. Gelegen zwischen Altem Markt und Kniepertor befinden Sie sich mitten im Geschehen. Restaurants und Cafés, Läden, ein Discounter, das Theater und mehrere Museen, alles ist fussläufig zu erreichen. Öffentliche Verkehrsmittel und ein Parkhaus sind nur 200 Meter entfernt.

Fahrräder können verschlossen und geladen werden.

Wir sind zentral, kreativ und hilfsbereit und freuen uns auf Ihren Besuch.

Ausstattung

Haustiere nicht erlaubt Haustiere nicht erlaubt
Nichtraucher Nichtraucher
WLAN WLAN
Fernseher Fernseher
Terrasse Terrasse
Spülmaschine Spülmaschine
Waschmaschine Waschmaschine
Grill Grill

Außenbereich

Grill
Terrasse

Badezimmer

Badezimmer

Badezimmer 1

mit Dusche


Küche

Spülmaschine
Kühlschrank
Mikrowelle
Backofen
Toaster

Geräte und Zubehör

Bettwäsche
Fernseher
Handtücher
Satelliten-/Kabel-TV
Waschmaschine
Wäschetrockner
WLAN
Föhn
Fahrradabstellraum

Geeignet für

Nichtraucher
Haustiere nicht erlaubt

Schlafzimmer

Schlafmöglichkeiten gesamt: 3

1Dreibettzimmer 1Dreibettzimmer

Anreise/Lage

Landkarte anzeigen

Anreise und Entfernungen

Strand 1.8 Kilometer

See 1.8 Kilometer

Einkaufsmöglichkeit 0.2 Kilometer

Bus 0.2 Kilometer

Bahnhof 1.4 Kilometer


Ort und Lage der Unterkunft

Die Ferienunterkunft befindet sich direkt in der Stralsunder Altstadt zwischen dem Kniepertor und dem Alten Markt. Die nächste Bushaltestelle Olof-Palme-Platz ist nur wenige Meter entfernt.


Freizeitmöglichkeiten

Fahrradfahren

Richtlinien


Hinweise des Vermieters

Stornierungsbedingungen:

Bei einer Stornierung entstehen Ihnen folgende Kosten:
•ab Buchungsdatum: 40%
•ab 10 Tage vor Anreise: 60%
•ab 3 Tage vor Anreise: 80%


Verfügbarkeit

Bitte nutzen Sie den Preisrechner, um die Verfügbarkeit und den Preis zu ermitteln.


Die Ferienwohnung hat noch keine Bewertung

Die Bewertungen werden auf ihre Echtheit überprüft. Mehr dazu in unseren Bewertungsrichtlinien.
Bewertung abgeben

Kontakt

Firma HRS Holidays

Gastgeber seit: 29.11.2017

Kontaktsprachen: Deutsch, Englisch, Polnisch, Italienisch, Kroatisch

Objektnummer: 4770376

Kontaktdaten anzeigen Kontaktdaten anzeigen

0049(0) 30 555 722 975

Inserat melden

Sie können ein Inserat melden, wenn Sie den Eindruck haben, dass damit etwas nicht stimmt. Das Inserat wird anschließend vom Team von ferienhausmiete.de überprüft.


*Pflichtfelder

Rechtlicher Hinweis: Mit dem Absenden des Formulars erkläre ich mich mit der Geltung der Nutzungsbedingungen einverstanden. Ich stimme per Klick auf "Abschicken" einer Verarbeitung und Nutzung meiner Daten gemäß der Datenschutzerklärung zu.

Inserat melden Inserat melden

Weitere Unterkünfte von HRS Holidays

Alle Unterkünfte anzeigen von HRS Holidays

Weitere Unterkünfte, die Ihnen auch gefallen könnten


Weitere Informationen

Urlaubsideen: Strandurlaub

Objektnummer: 4770376

Zuletzt aktualisiert: 04.04.2026

Inserat online seit: 8 Monaten

URL: https://www.ferienhausmiete.de/4770376.htm

Haben Sie Fragen zu dieser Unterkunft?
Nachricht senden
Chat