Zurück
Suchen

Igelnest ID 162920

Max.  8  Gäste
90m²
3 Schlafzimmer
Teilen
Bitte geben Sie Ihre Reisedaten ein für genaue Preise
2 Gäste




Beschreibung

Wohnen auf zwei Ebenen – viel Raum für Ihren Urlaub

Diese charmante Ferienwohnung erstreckt sich über zwei Ebenen – das Obergeschoss und das Dachgeschoss – und bietet grosszügigen Platz für einen entspannten Aufenthalt.

Im Obergeschoss erwartet Sie der helle und weitläufige Wohn-Ess- und Kochbereich mit gemütlicher Couchlandschaft, TV und Esstisch – der perfekte Treffpunkt für gemeinsame Stunden. Auf der Couch stehen zwei zusätzliche Schlafplätze als Aufbettung zur Verfügung. Ebenfalls auf dieser Ebene befinden sich das Tageslichtbad mit Dusche und WC sowie Schlafzimmer 1 mit komfortablem Doppelbett.

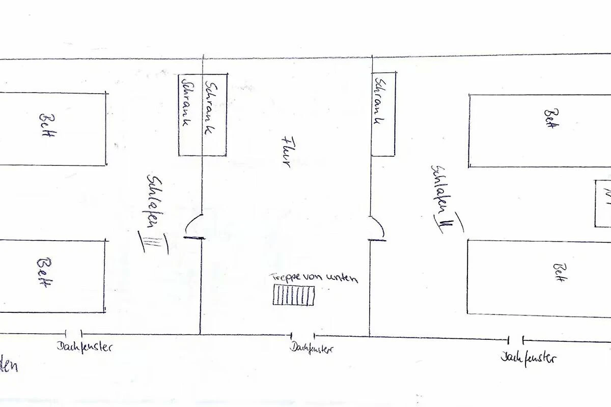
Über eine Treppe gelangen Sie ins Dachgeschoss, wo sich die beiden weiteren Schlafzimmer befinden. Schlafzimmer 2 und 3 sind jeweils mit zwei Einzelbetten ausgestattet und bieten viel Raum für Ruhe und Erholung.

Diese Ferienwohnung kombiniert Grosszügigkeit, Funktionalität und Wohlfühlatmosphäre – ideal für Familien oder Urlaub mit Freunden. Ein Handtuchpaket (kostenfpfl.) enthält ein Handtuch und ein Duschtuch. Bitte wählen Sie die Anzahl Handtuchpaket beim Buchungsvorgang. Kinderbett komplett mit Hochstuhl kann für 25 Euro gemietet werden. 

Bitte beachten Sie, dass die Unterbringung nicht für Monteure, JGAs, Gruppenfeierlichkeiten oder Ä. buchbar ist. 

Ausstattung

Haustiere nicht erlaubt Haustiere nicht erlaubt
Nichtraucher Nichtraucher
WLAN WLAN
Garten Garten
Fernseher Fernseher
Spülmaschine Spülmaschine
Kinderbett Kinderbett
Parkplatz Parkplatz
Grill Grill

Außenbereich

Garten
Grill
Parkplatz

Badezimmer

Badezimmer

Badezimmer 1

mit Dusche


Küche

Gefrierfach
Spülmaschine
Backofen
Toaster

Geräte und Zubehör

Bettwäsche
Fernseher
Handtücher
Satelliten-/Kabel-TV
Kinderbett
Kinderhochstuhl
WLAN
Föhn
Fahrradabstellraum
Terrassenmöbel

Geeignet für

Nichtraucher
Allergiker
Haustiere nicht erlaubt
Kinder willkommen

Schlafzimmer

Schlafmöglichkeiten gesamt: 8

1Doppelbettzimmer 1Doppelbettzimmer
2Dreibettzimmer 2Dreibettzimmer

Anreise/Lage

Landkarte anzeigen

Anreise und Entfernungen

See 3 Kilometer

Einkaufsmöglichkeit 8.8 Kilometer

Bus 0.5 Kilometer

Flughafen 25 Kilometer

Bahnhof 8.8 Kilometer

Autobahnabfahrt 25 Kilometer


Ort und Lage der Unterkunft

Erkunden Sie die Umgebung mit dem Rad oder zu Fuss. Weite Felder, Seen und Wälder, eine faszinierende Tierwelt und kleine Dörfer mit sehenswerten Gutsanlagen und Kirchen laden ein, erkundet zu werden. Der Müritz-Nationalpark liegt direkt vor Ihrer Haustür. Für ein kleinen Shoppingbummel sind sie in knapp 15 Minuten Autofahrt in Warens Innenstadt, geniessen Sie das Kleinstadtflair und die schöne Mariana mit vielen kleinen Lokalen für kulinarischen Genuss. Mit Ihrer Gästekarte (Kurtaxe) erhalten sie u. a. kostenlosen Zutritt zu öffentlichen Buslinien wie Müritz rund um.


Freizeitmöglichkeiten

Fahrradfahren
Wandern

Richtlinien


Hinweise des Vermieters

Stornierungsbedingungen:

Bei einer Stornierung entstehen Ihnen folgende Kosten:
•ab Buchungsdatum: 20%
•ab 29 Tage vor Anreise: 50%
•ab 6 Tage vor Anreise: 80%


Verfügbarkeit

Bitte nutzen Sie den Preisrechner, um die Verfügbarkeit und den Preis zu ermitteln.


Die Ferienwohnung hat noch keine Bewertung

Die Bewertungen werden auf ihre Echtheit überprüft. Mehr dazu in unseren Bewertungsrichtlinien.
Bewertung abgeben

Kontakt

Firma HRS Holidays

Gastgeber seit: 29.11.2017

Kontaktsprachen: Deutsch, Englisch, Polnisch, Italienisch, Kroatisch

Objektnummer: 4817440

Kontaktdaten anzeigen Kontaktdaten anzeigen

0049(0) 30 555 722 975

Inserat melden

Sie können ein Inserat melden, wenn Sie den Eindruck haben, dass damit etwas nicht stimmt. Das Inserat wird anschließend vom Team von ferienhausmiete.de überprüft.


*Pflichtfelder

Rechtlicher Hinweis: Mit dem Absenden des Formulars erkläre ich mich mit der Geltung der Nutzungsbedingungen einverstanden. Ich stimme per Klick auf "Abschicken" einer Verarbeitung und Nutzung meiner Daten gemäß der Datenschutzerklärung zu.

Inserat melden Inserat melden

Weitere Unterkünfte von HRS Holidays

Alle Unterkünfte anzeigen von HRS Holidays

Weitere Unterkünfte, die Ihnen auch gefallen könnten


Weitere Informationen

Urlaubsideen: Urlaub am See

Objektnummer: 4817440

Zuletzt aktualisiert: 25.02.2026

Inserat online seit: Diese Anzeige ist neu

URL: https://www.ferienhausmiete.de/4817440.htm

Haben Sie Fragen zu dieser Unterkunft?
Nachricht senden
Chat