Fewo Deichwiesen 07-2 SZ bis max. 5 Pers.
Karlshagen
und Provisionen
Beschreibung
Doppelhaus mit 8 komfortablen Ferienwohnungen in hochwertiger Ausstattung für max. 1-6 Personen, davon 1 Kleinkind bis 2 Jahre je Wohnung.
Hier, in dem landschaftlich wunderschön gelegenen Ferienhaus in Karlshagen auf Usedom, findet der Gast Erholung. Von der Terrasse oder dem Balkon reicht der Ausblick kilometerweit über die Deichwiesen. Bei sauberer erholsamer Meeresluft lädt es ein, das Naturschauspiel von den Tieren auf der Wiese, die wechselnden Wolkenformen, die schönen Sonnenuntergängen und die Vogelschwärme immer wieder neu zu beobachten.
Die 2-Raum-Ferienwohnungen 01,02,05 und 06 befinden sich im Erdgeschoss und verfügen alle über eine Terrasse zum Garten.
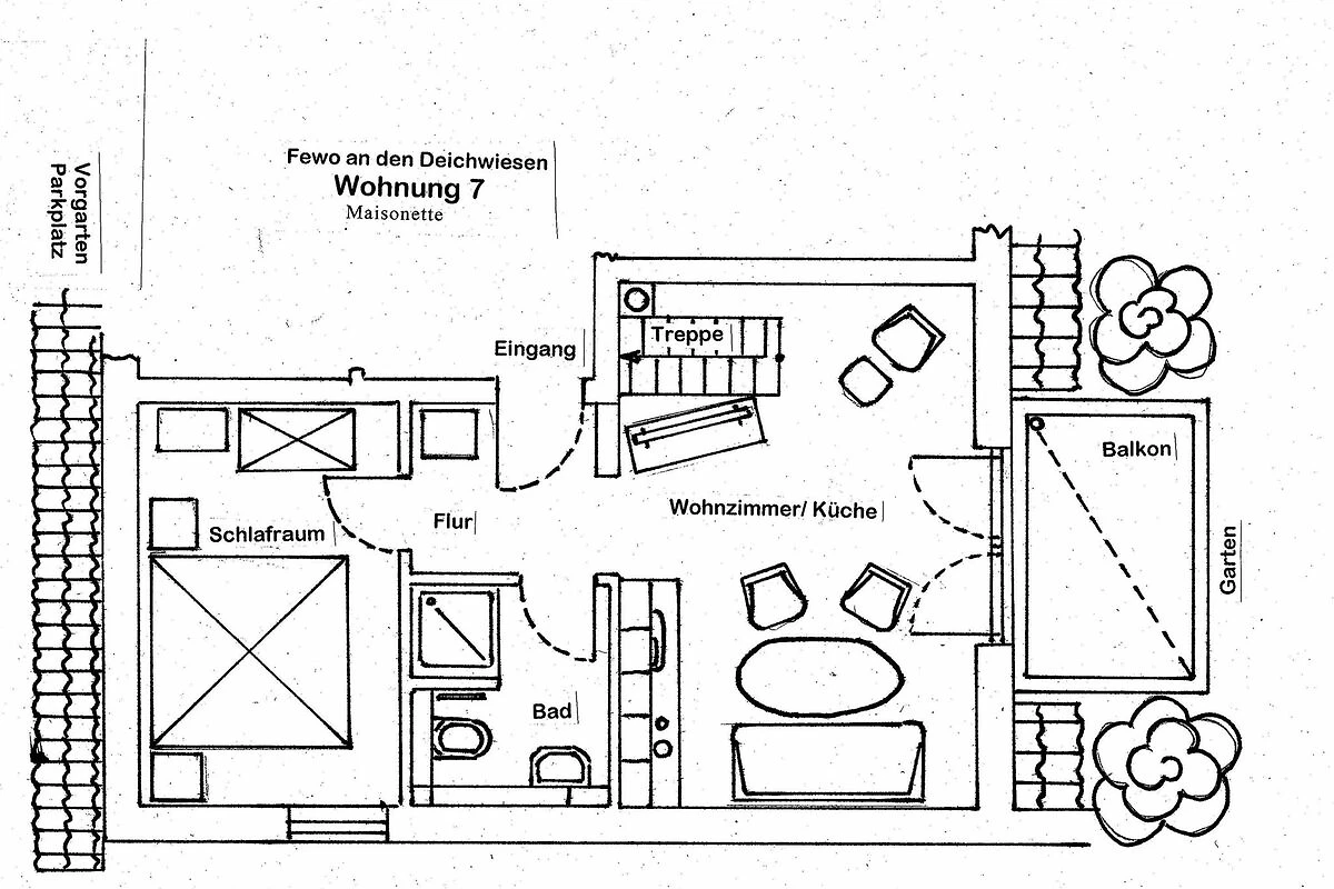
Im 1. Obergeschoss befinden sich die 3-Raum-Maisonettewohnungen 04,07 und 08. Diese Unterkünft haben alle einen Balkon.
Eine, dezent im Wohnbereich integrierte Holztreppe (Raumsparstreppe, siehe Bild), führt innerhalb der Maisonettewohnungen ins nächste Obergeschoss im dem sich das zweite Schlafzimmer befindet. Bitte beachten sie, diese Treppe ist sehr steil und könnte für körperlich eingeschränkte Personen und kleinere Kinder ein Problem darstellen.
In den Wohnungen sorgt die Fussbodenheizung für eine angenehme Wärme für kühlere Tage. Zusätzlich sind im Wohnbereich überwiegend Kaminöfen.
Jede Wohnung verfügt über eine offene Küche. In allen Wohnungen ist kostenloses WLAN vorhanden.
Der grosse Garten bietet Auslauf zum Spielen, Sitzplätze in Pavillons, Grillplätze und eine Feuerstelle für schöne Abende nach einem Tag am weissen, breiten und langen Strand.
Zu jeder Wohnung gehört ein Parkplatz.
Fahrräder können sicher in verschliessbaren Fahrradgaragen untergestellt werden. Zum Laden der Akkus eines E-Bikes, eines E-Rollers u. ä. sind in den Fahrradgaragen Steckdosen vorgesehen.
Das Ferienhaus ist ideal für Gäste, die gerne mit Familie oder Freunden verreisen oder für kleinere Reisegruppen. Das Ferienhaus ist für Gästegruppen unter 25 Jahre nicht geeignet ist. Wir weisen ausdrücklich darauf hin, dass wir zum Wohle der Nachbarn, auf ein entsprechend ruhiges Wohnen und gegenseitige Rücksichtnahme Wert legen
Im Objekt Strand 18 finden Sie gegen Gebühr - Fahrradverleih für die ganze Familie
Es handelt sich bei diesem Vertrag um eine Vermittlerleistung für den Eigentümer.
Bettwäsche, Handtücher, Haustiere gegen Gebühr. Nicht im Preis enthalten.
Ausstattung
Außenbereich
Badezimmer
Badezimmer 1
mit Dusche
Küche
Geräte und Zubehör
Geeignet für
Schlafzimmer
Schlafmöglichkeiten gesamt: 6
Anreise/Lage


Anreise und Entfernungen
Strand 2 Kilometer
2 Kilometer
See 2 Kilometer
2 Kilometer
Einkaufsmöglichkeit 0.9 Kilometer
0.9 Kilometer
Ortsmitte 1.5 Kilometer
1.5 Kilometer
Flughafen 30 Kilometer
30 Kilometer
Bahnhof 1.3 Kilometer
1.3 Kilometer
Autobahnabfahrt 50 Kilometer
50 Kilometer
Ort und Lage der Unterkunft
Wer die Natur liebt, den Blick über weite Felder und Wiesen streifen lassen möchte, wird sich in den Ferienwohnungen des Ferienhauses erholen.
Das Ferienhaus mit 7 Ferienwohnungen befindet sich im Ostseebad Karlshagen auf einem, den Gästen zur Verfügung stehenden, grossen Grundstück.
Das Grundstück grenzt an Wiesen und Felder.
Jede Wohnung hat Blick auf die weite unberührte Natur.
Bei klarem Wetter ist am Horizont der Peenestrom zu sehen. Der Yachthafen ist fussläufig zu erreichen. Bahnhof der UBB (Usedomer Bäderbahn), Einkaufsmöglichkeiten, Banken, Apotheke und Ärztehaus im Ort.
Mit einem gemütlichen Spaziergang in Richtung Strandpromenade, der an der Strasse entlang oder durch den Wald führen kann, erreichen Sie den neu entstandenen Ortskern mit verschiedenen Gaststätten, Geschäften, usw..
Das Meerwasserschwimmbad BERNSTEINTHERME erreichen Sie mit dem Auto, wo Sie der Besuch, des Meerwasserschwimmbades, (ganzjährig geöffnet) mit Wellnessbereich, Kegelbahn , Aussenschwimmbecken, etc. begeistern wird.
In wenigen Autominuten erreichen Sie Europas grösste SCHMETTERLINGSFARM, die für die ganze Familie eine Highlight ist.
Freizeitmöglichkeiten
Richtlinien
Verfügbarkeit
Bitte nutzen Sie den Preisrechner, um die Verfügbarkeit und den Preis zu ermitteln.
frei belegt An bzw. Abreisetag
Zuletzt aktualisiert: 02.10.2025
23 Bewertungen
Gesamtbewertung
Kontakt
Firma HRS Holidays

Sie können diese Ferienunterkunft direkt buchen und erhalten anschließend alle erforderlichen Informationen zur Zahlung per E-Mail.
Weitere Unterkünfte von HRS Holidays
Weitere Unterkünfte, die Ihnen auch gefallen könnten
Weitere Informationen
Ferienhäuser & Ferienwohnungen in Deutschland
Ferienhäuser & Ferienwohnungen in Mecklenburg-Vorpommern
Ferienhäuser & Ferienwohnungen an der Ostsee
Ferienhäuser & Ferienwohnungen auf Usedom
Urlaubsideen: Strandurlaub
Objektnummer: 155154
Zuletzt aktualisiert: 02.10.2025
Inserat online seit: 7 Jahren, 2 Monaten
URL: https://www.ferienhausmiete.de/155154.htm
«Fewo Deichwiesen 07-2 SZ bis max. 5 Pers.» erreicht eine Urlauberbewertung von 4.4 (Bewertungsskala: 1 bis 5) bei 23 abgegebenen Bewertungen.
und Provisionen
